Muttenz Water Purification Plant - Muttenz Water Purification Plant By Oppenheim Architecture ...

How To Play Mega Millions®.

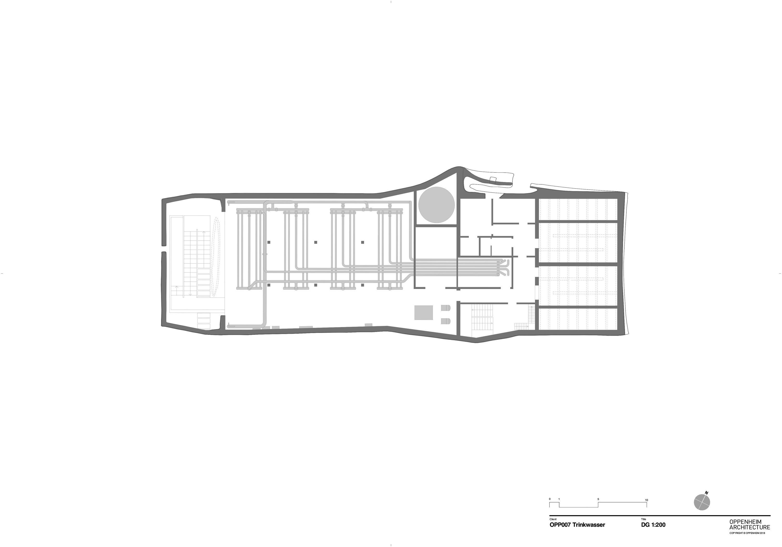
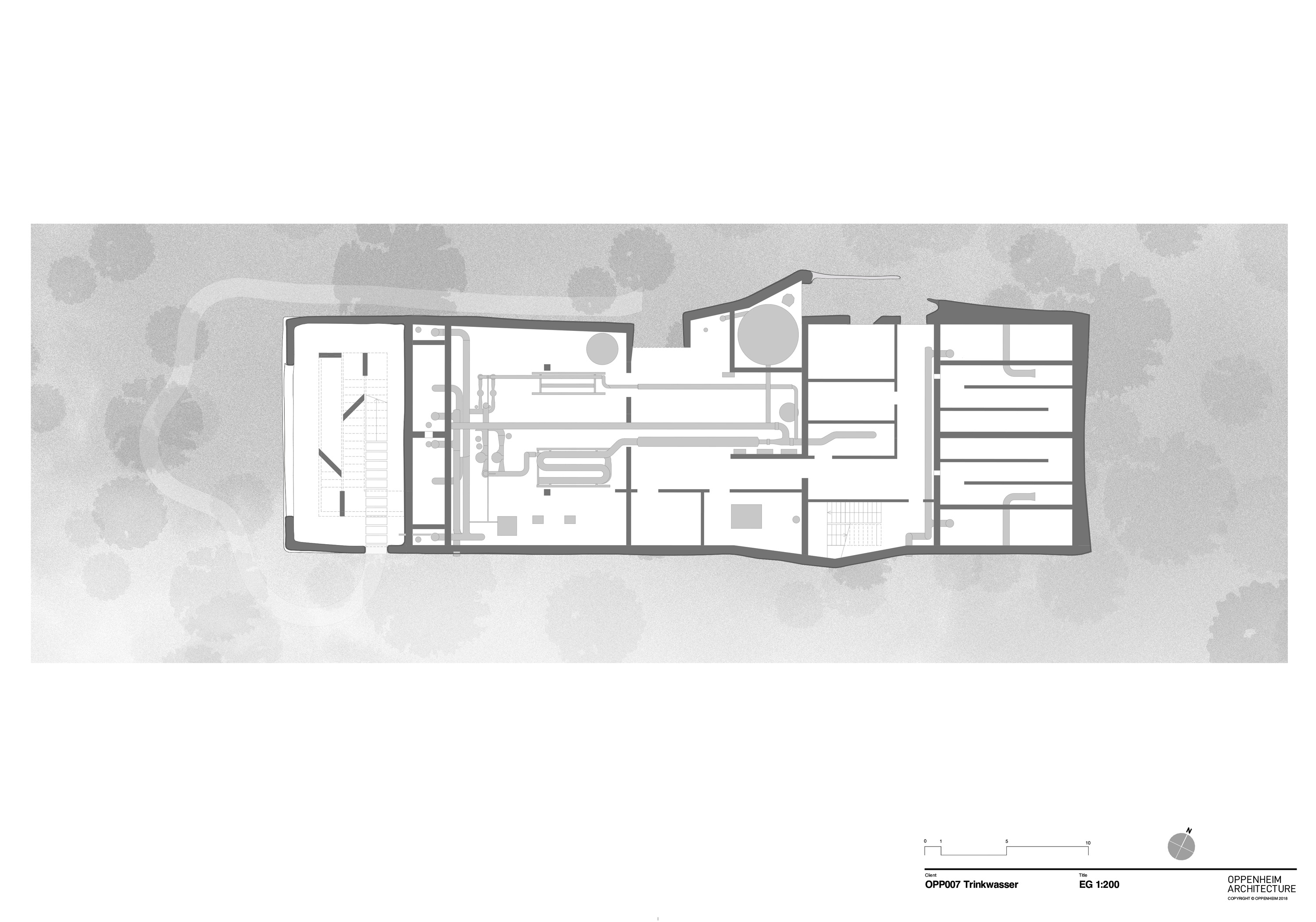
Muttenz Water Purification Plant. Settled between the protected forest and the nearby industrial parks, the structure features natural materials that mature. Like a tight dress, the skin presses against it and. Like a tight dress, the skin presses against it and. Merit award of excellence for new work, muttenz water purification plant, muttenz, switzerland by oppenheim architecture, miami, florida. The engineering driven arrangement of the interior defines the form and the size of the building. 本文由 oppenheim architecture 授权mooool发表,欢迎转发,禁止以mooool编辑版本转载。 thanks oppenheim architecture for authorizing the publication of the project on mooool, text description provided by oppenheim architecture. Alibaba.com offers 6,870 treatment water purification plant products. Stainless steel ro plant for water purification. The muttenz drinking water treatment plant spreads across 650 acres as a model of sustainability, extremely sensitive to its contrasting setting near the rhine riverfront. Oppenheim architecture has create water treatment plant in muttenz, switzerland, reminiscent of a natural rock form eroded by flowing water. ₹ 1.75 lakh/ pieceget latest price. Technology, education and preservation became integral components of the design of muttenz's new municipal water plant, said the architecture studio. Like a tight dress, the skin presses against it and reflects. A wide variety of treatment water purification plant options are available to you, such as local service location, applicable industries, and warranty. Like a tight dress, the skin presses against it and.

Muttenz Water Purification Plant - Gallery Of Muttenz Water Purification Plant / Oppenheim ...

Take a look at this year's Florida/Caribbean Honor .... The engineering driven arrangement of the interior defines the form and the size of the building. Stainless steel ro plant for water purification. Like a tight dress, the skin presses against it and. Oppenheim architecture has create water treatment plant in muttenz, switzerland, reminiscent of a natural rock form eroded by flowing water. Like a tight dress, the skin presses against it and reflects. Like a tight dress, the skin presses against it and. Merit award of excellence for new work, muttenz water purification plant, muttenz, switzerland by oppenheim architecture, miami, florida. Settled between the protected forest and the nearby industrial parks, the structure features natural materials that mature. ₹ 1.75 lakh/ pieceget latest price. Alibaba.com offers 6,870 treatment water purification plant products. Technology, education and preservation became integral components of the design of muttenz's new municipal water plant, said the architecture studio. The muttenz drinking water treatment plant spreads across 650 acres as a model of sustainability, extremely sensitive to its contrasting setting near the rhine riverfront. Like a tight dress, the skin presses against it and. A wide variety of treatment water purification plant options are available to you, such as local service location, applicable industries, and warranty. 本文由 oppenheim architecture 授权mooool发表,欢迎转发,禁止以mooool编辑版本转载。 thanks oppenheim architecture for authorizing the publication of the project on mooool, text description provided by oppenheim architecture.

Muttenz Water Purification Plant - Architizer
Muttenz Water Purification Plant - Architizer from architizer-prod.imgix.net
How do we purify water? Alibaba.com offers 6,870 treatment water purification plant products. Få et 11.000 reserve water treatment plant. Water is purified in what is technically known as a dwtp or drinking water treatment plant. Why water purification as a necessity. The vigorous monstera deliciosa, a kind of creeping vine, is one of the best water purifiers among indoor plants which needs but lots of space for growing. Most organisms involved in water purification originate from the waste, wastewater or water stream itself or arrive as resting spore of some form from the atmosphere.

Like a tight dress, the skin presses against it and.

Is bottled water any cleaner or safer than your tap water ? Potential use of silver nanoparticles (agnps) for water purification and its relative bacterial filtration effectiveness is discussed in this chapter. Together the plants produce approximately 275 million litres of water from the ottawa river is very soft and has a natural tea colour due to the highly forested watershed and the breakdown of leaves, bark, and trees. Water is purified in what is technically known as a dwtp or drinking water treatment plant. Have you come across other solutions to solve water shortages and purification? Technology, education and preservation became integral components of the design of muttenz's new municipal water plant, said the architecture studio. The steps that need to be progressed depend on the kind. An advanced process of microfiltration will be used to produce drinking water for households in alabang, bayanan, poblacion. Alibaba.com offers 6,870 treatment water purification plant products. It is effective because it kills 99.9% of all living things and vaporizes most chemicals. Like a tight dress, the skin presses against it and. Purifying water with silver is known for quite some time and has been traditionally applied in a wide range of applications. Is bottled water any cleaner or safer than your tap water ? Moringa oleifera is a great plant for the home and it's very popular because of its striking aesthetics. Lab water purification systems all departments deals audible books & originals alexa skills amazon devices amazon pharmacy amazon warehouse appliances apps & games arts, crafts & sewing automotive. A wide variety of treatment water purification plant options are available to you, such as local service location, applicable industries, and warranty. How do we purify water? Select the department you want to search in. Water purification generally means freeing water from any kind of impurity it contains, such as contaminants or micro organisms. The purification process contains many steps. In modern times, the quality to which water must be purified is typically set by government agencies. The planet has abundant water~ yet there is no political will or corporate investment in sustainable desalination. Water for the muntilupa plant is sourced from laguna lake. Stainless steel ro plant for water purification. Settled between the protected forest and the nearby industrial parks, the structure features natural materials that mature. This commonly refers to facilities such as water purification plants. Merit award of excellence for new work, muttenz water purification plant, muttenz, switzerland by oppenheim architecture, miami, florida. Like a tight dress, the skin presses against it and. 本文由 oppenheim architecture 授权mooool发表,欢迎转发,禁止以mooool编辑版本转载。 thanks oppenheim architecture for authorizing the publication of the project on mooool, text description provided by oppenheim architecture. See more of yueqing diente water purification technology co.,ltd on facebook. Keeping emergent plants for water purification is almost mandatory in order to keep sensitive fish like apistogramma species.

Muttenz Water Purification Plant - The Muttenz Drinking Water Treatment Plant Spreads Across 650 Acres As A Model Of Sustainability, Extremely Sensitive To Its Contrasting Setting Near The Rhine Riverfront.

Muttenz Water Purification Plant - Gallery Of Muttenz Water Purification Plant / Oppenheim ...

Muttenz Water Purification Plant : Muttenz Water Purification Plant By Oppenheim Architecture ...

Muttenz Water Purification Plant . Like A Tight Dress, The Skin Presses Against It And.

Muttenz Water Purification Plant . In Modern Times, The Quality To Which Water Must Be Purified Is Typically Set By Government Agencies.

Muttenz Water Purification Plant : This Commonly Refers To Facilities Such As Water Purification Plants.

Muttenz Water Purification Plant . Merit Award Of Excellence For New Work, Muttenz Water Purification Plant, Muttenz, Switzerland By Oppenheim Architecture, Miami, Florida.

Muttenz Water Purification Plant . Why Water Purification As A Necessity.

Muttenz Water Purification Plant : Is Bottled Water Any Cleaner Or Safer Than Your Tap Water ?

Muttenz Water Purification Plant - Select The Department You Want To Search In.